How to Get an Accurate Quote for Your Kitchen Worktop

At Stone & Quartz, we want to make the process of getting your dream worktop as simple as possible. To get started, there are two options for providing us with the measurements we need for your free, no-obligation quote:

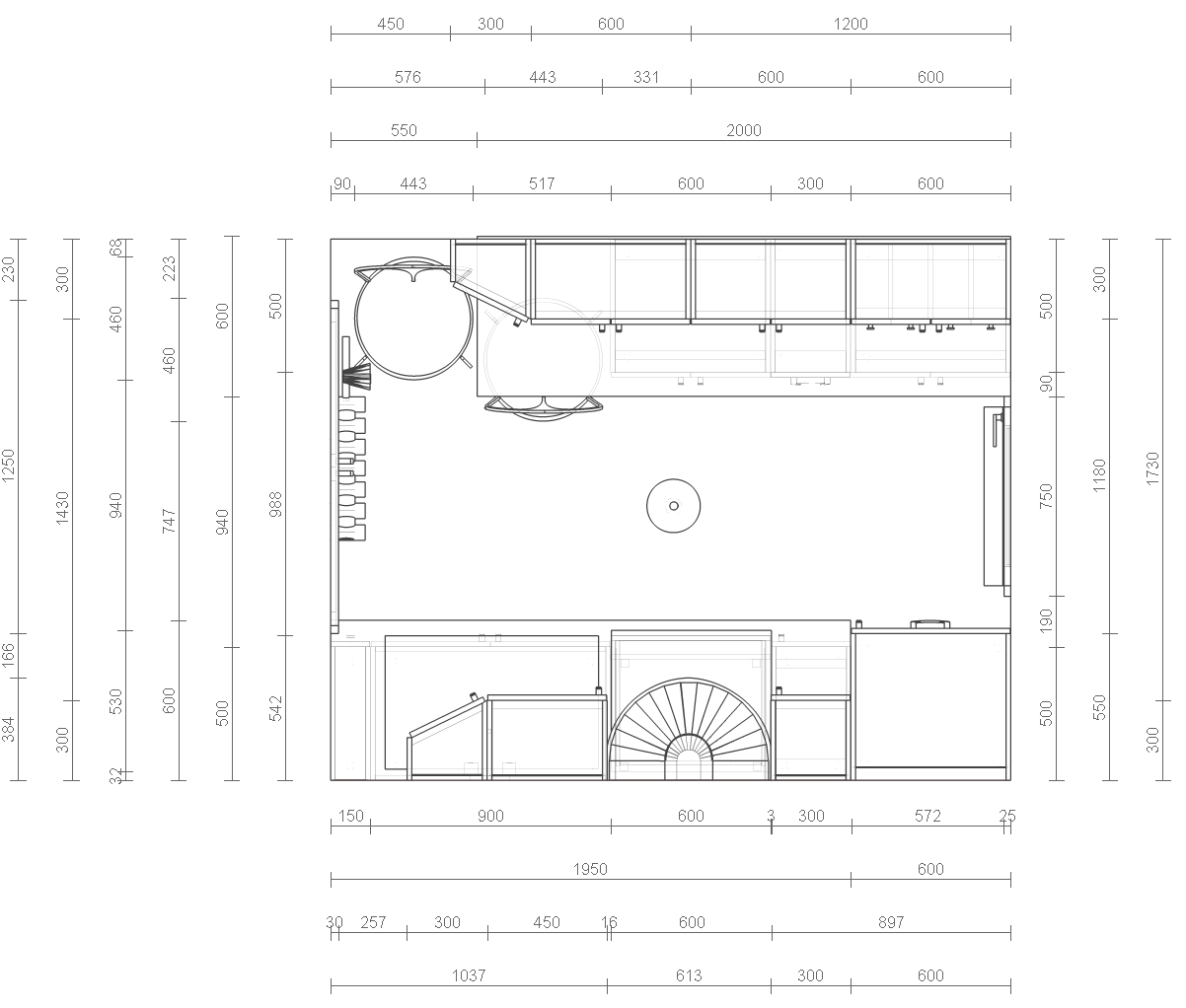
Option 1: Upload Your Kitchen Plan

If you have a professionally designed kitchen plan:

  1. Upload the Plan

    • Use our online quotation form to submit your kitchen plan. If you are also ordering samples, add samples to your wishlist from the Trending Colours page. You will be directed to an online quotation form when you request your samples

  2. Plan Review

    • Our design experts will review your plan to ensure every detail is captured accurately.

  3. Follow-Up

    • A Stone & Quartz Worktop Designer will contact you to confirm your design requirements and answer any questions.

Credit: Elektron


Option 2: Provide Your Own Measurements

If you don’t have a professional kitchen plan, you can take your own measurements. Follow this guide to ensure we have all the details we need:

  1. Sketch Your Kitchen Layout

    • Create a simple drawing of your kitchen showing the areas where worktops are needed.

  2. Take Accurate Measurements

    • Measure the maximum length and width of each worktop section.

    • Include the depth of your kitchen units to ensure a precise fit.

  3. Detail Additional Features

    • Include measurements for:

      • Upstands: Provide the height and width.

      • Splashbacks: Specify the dimensions for height and width.

      • Window Cills: Include these if required.

  4. Count and Measure Cut-Outs

    • Specify the number and size of cut-outs for:

      • Sinks (e.g., undermount, Belfast, or inset)

      • Hobs or cooktops

      • Tap holes

      • Pop-up sockets

      • Wall socket holes in splashbacks or upstands


What to Provide Us for Your Quotation

No matter how you submit your measurements, please ensure you provide the following:

  • Kitchen Layout: Whether a professional plan or your own sketch, include the overall layout of your kitchen.

  • Worktop Dimensions: Include the length, width, and depth of each worktop section.

  • Cut-Out Details: Provide details for sinks, hobs, taps, and any other custom cut-outs.

  • Edge Profile Preferences: Let us know if you'd like something other than the standard Double Bevel edge.

  • Additional Features: Specify any upstands, splashbacks, or window cills.


Submit Your Quote Request

With samples
Without samples

Our design team will review your submission and contact you to confirm your requirements.

We make it easy for you to get an accurate quote and take the first step toward your perfect kitchen worktop. If you have any questions, our friendly team is here to help!

Alex Jennings

Owner of Stone & Quartz, the largest reputable mainstream worktop fabricator dedicated to delivering a wide variety of premium surfaces directly to consumers. With a passion for quality and choice, Alex ensures every customer has the freedom to find the perfect surface to suit their style and budget.

Previous
Previous

Caring for Your AG Granite Worktops: Maintenance & Aftercare Guide

Next
Next

Caring for Your AG Quartz Worktops: Maintenance & Aftercare Guide